欢迎来到安平县秉德丝网制品有限公司网站!

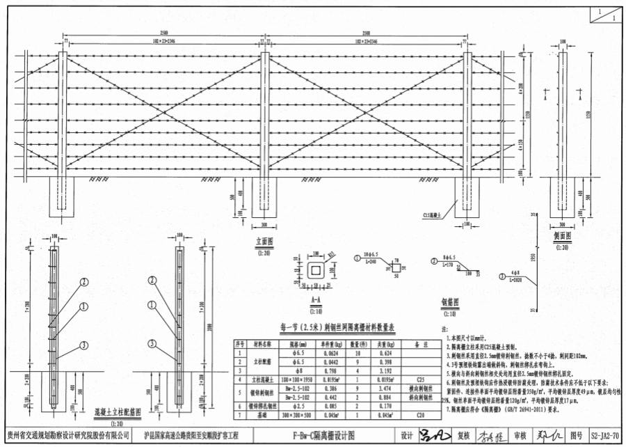
沪昆国家高速公路贵阳至安顺段扩容工程F-Bw-C刺钢丝网隔离栅生产厂家
1.本图以mm计。
2.隔离栅立柱采用C25混凝土预制。
3.刺钢丝采用直径2.5mm镀锌刺钢丝,捻数不小于4捻,刺间距102mm。
4.3号预埋铁钩露出端做斜钩,刺钢丝绑扎在弯钩上。
5.横向与斜向刺钢丝相交处用直径2.5mm镀锌钢丝绑扎固定。
6.刺钢丝及预埋铁钩应作热浸镀锌防腐处理,防腐技术条件应不低于以下要求:紧固件、连接件单面平均镀锌层附着量350g/㎡,平均镀锌层厚度49μm,镀层均匀性25%。钢丝单面平均镀锌层附着量120g/㎡,平均镀锌层厚度17μm。
7.隔离栅应符合《隔离栅》 (GB/T 26941-2011)要求。