欢迎来到安平县秉德丝网制品有限公司网站!

S46长兴至高淳高速公路皖浙省界至郎溪西枢纽段防眩网生产厂家
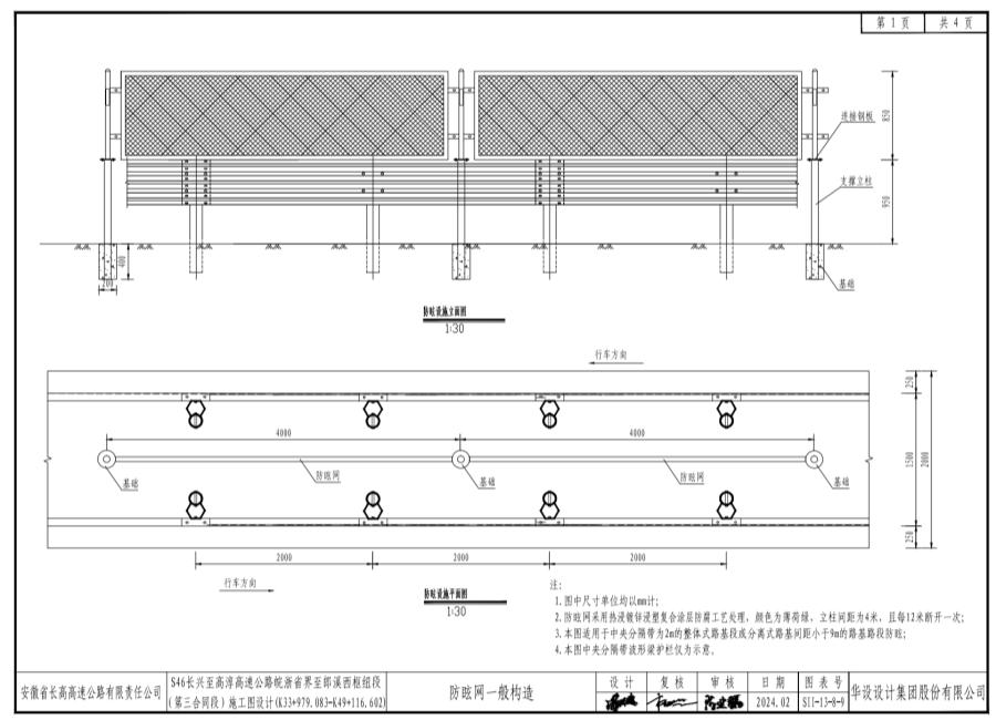
1.图中尺寸单位均以mm计。
2.本图适用于中央分隔带为2m的整体式路基段防眩。
3.支撑立柱、横梁、连接钢板等钢构件采用热浸镀锌浸塑复合涂层防腐处理,镀锌量为275g/㎡,紧固件的镀锌量为120g/㎡,浸层厚度大于0.25mm。颜色为薄荷绿;支撑间距为4米,且防眩网每12米断开一次。
4.预留安装螺孔可根据需要,将调节螺孔增长,方便调节安装。
5.防眩网支撑立柱设置时注意曲线上防眩板线型的顺畅,且防眩网的中心线与道路中心线重合
6.基础钻孔,用混凝土浇筑注。注意控制孔洞深度,通信管道的埋设位置,严禁将通信管道破坏。
7.本图中央分隔带波形梁护栏仅为示意。
8.中分带防眩及中分带硬化施工组织划分,防眩施工由交安施工单位负责应先于中分带硬化施工,中分带硬化由主体单位负责应于防眩施工完成后进行(中分带》硬化。