欢迎来到安平县秉德丝网制品有限公司网站!

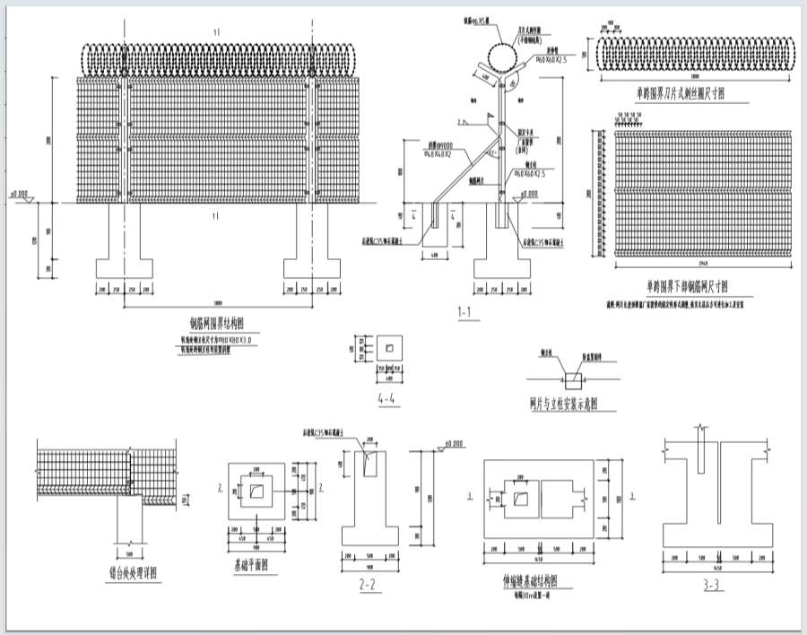
呼和浩特市和林格尔机场钢筋网围界专业生产厂家
总高度2.5m。立柱截面尺寸为口60x60x2.5mm、延伸臂截面尺寸为口60x60x2.5mm。转角处立柱截面尺寸为口80x80x3.0mm,斜撑截面尺寸为口48x48x2.0mm@9000。钢筋网片网格尺寸为50x100mm(中到中),滚笼采用刀片式刺丝(不锈钢材质),直径为500mm。不用考虑基础。立柱间距3米,转角暂按15处考虑钢筋网围界的网片、立柱及延伸臂的防腐处理采用金属?;げ憬岷贤克鼙;げ愕母春媳;?。金属保护层采用热镀锌,镀层厚度:网片及连接件部分不小于120g/㎡。立柱及延伸臂部分不小于270g/㎡。涂塑层采用高附着力聚酯涂层,涂层厚度≥80um(干膜),涂塑工艺由内及外为富锌磷化、有机环氧涂层、热固性聚酯粉末涂层。