欢迎来到安平县秉德丝网制品有限公司网站!

贵州六盘水光伏电站镀锌钢丝刺丝围栏专业生产厂家
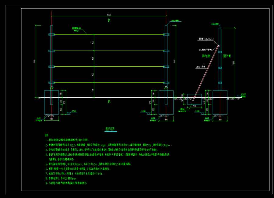
1、本图为光伏电站镀锌双股刺绳围墙及大门施工方案图。
2、镀锌钢丝围栏钢管要求采用 Q235 热镀锌钢管,镀锌层平均厚度>30μm,双股刺绳蒺藜要求采用14*14镀锌低碳钢丝,刺距15CM,镀锌层厚度>30μm。
3、图中透空围墙样式仅为示意,具体样式、颜色、型号等以厂家确定的实物为准。围墙加工制作及安装调试,柱的预埋件位置及型号由专业厂家确定。
4、围墙厂家应提供围墙及其立柱内外有效的防腐及围墙立柱内防雨水等措施,并应派专人现场指导施工。若根据地勘资料,场地土对混凝土中钢筋不具有腐蚀或仅具有微腐蚀,基础可不做防腐处理。
5、围栏基础采用灌注短桩,钻孔直径300mm,孔深不小于0.5m,围栏立柱就位后采用C25细石混凝土灌孔。
6、每隔3米设置一个立柱,每隔100米设置一组斜撑,立柱基础为现浇C25素混凝土。
7、地面以下回填土,要求:采用素土,必须分层夯实,压实系数不小于0.94。
8、除特殊注明外,图示尺寸单位为mm。
9、凡本图未尽事宜严格按照现行施工及验收规划执行。