欢迎来到安平县秉德丝网制品有限公司网站!

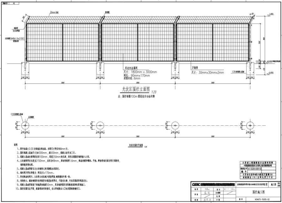
江苏盐城清能射阳黄沙港60MW渔光互补光伏项且工程光伏区围栏生产厂家
1、图中标高±0.00为场地自然标高。本图尺寸单位均以mm计。
2、围栏混凝土基础尺寸为φ300mm,高500mm,混凝土标号为C30。
3、混凝士基础内部预留直径100mm,深度250mm的孔洞,用作后期围栏钢管插入之用。
4、立柱钢管要求长度为2150mm,直径为48mm,原材料壁厚1.6mm,配备热镀锌螺栓、平垫、弹垫等相关固定网片用附件,钢管做浸塑处理。
5、混凝土基础预留孔与立柱钢管之间用膨胀水泥固定。
6、钢丝网片要求参数为:网孔90x170mm。
7、所有配备的网片、立柱等主材应减少拼接焊接,确保整体外观一致。
8、到场的主、辅材确保所有参数符合规范标准要求,不能有生锈,外表层脱落等现象发生。
9、混凝土基础顶面高于场地原始地面50mm,复杂地势围栏采取随坡就势的原则施工。
10、围栏位置见总平图,根据现场实际情况,在主要道路出入口处设置钢管栅栏门。