欢迎来到安平县秉德丝网制品有限公司网站!

江苏太仓娄江工厂围栏围墙专业生产厂家
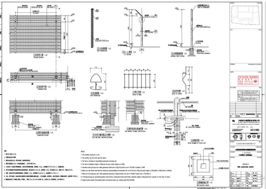
1.图中尺寸均以mm计。
2.位置坐标见总平面图。
3.围栏由直埋式立柱、网片和曲臂、底座等构件组成。
4.围栏安装高度2500( 不包括基础高度),立柱中心距2560。
5.立柱采用一次成型无焊缝钢型材,材质为双面热镀锌钢板,镀锌量>120g,立柱截面尺寸70x100x1.2,高度随栏高。
6.网片采用高强度冷拔热镀锌钢丝电阻熔焊制成,钢丝直径6+5+6,镀锌量>120g,网片高度2450,宽度2500,网格200x50。
7.曲臂、底座采用冷扎热镀锌钢板制成,镀锌量>120g,曲臂规格70x500x1.5,底座规格70x100x1.2。
8.立柱、网片和曲臂、底座表面采用高附着力热固性聚酷粉末静电涂装,工艺为热镀锌、富锌磷化、有机环氧涂层、聚醋粉末图层,防腐年限15年以上。
9.围墙基础采用C30混凝土现浇(可预制),预留150x150x350立柱埋入孔,立柱埋入后二次浇筑固定,埋入深度300。